ENH-110L(R)-100 商品詳細
index
仕様
| 取付タイプ | 盤内側面取付 |
|---|---|
| 冷却方式 | 超熱伝導管方式(ヒートパイプ) 完全ノンフロン(純水使用) |
| 定格能力(W/K) | 10/12 |
| 使用周囲温度(℃) | 0~60以下 |
| 使用周囲湿度(%RH) | 10~85(但し結露なきこと) |
| 外形寸法(mm) | H344×W156×D70 |
| 質量(kg) | 3 |
| 塗装色 | 溶融亜鉛メッキ鋼板/無塗装 |
| 定格電圧(V) | 単相AC100 |
| 消費電流(A) | 0.36/0.30(MAX) |
| 拘束電流(A) | 0.40/0.36(MAX) |
| 消費電力(W) | 28/24(MAX) |
注)型式の(R)はRoHS指令対応を示します。
注)定格能力(W/K):盤内・盤外温度差が20Kの時の熱交換能力。
注)拘束電流:モーターが拘束した状態での最大電流。
付属パーツリスト
| プロテクトカバー | 1個 |
|---|---|
| フィルター | 1枚 |
注)在庫状況によっては納期が変動しますので営業担当へご確認ください。
※型式・仕様その他の記載内容は、予告なく変更する場合がありますので、あらかじめご了承ください。
外形寸法図

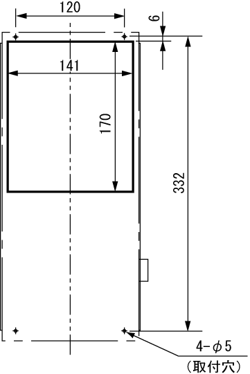
取付加工図(標準パネルカット)

※制御盤外部から見た図です。
※加工に際してはネジピッチをキープしてください。
※標準パネルカットは、モデルチェンジを行っても変更いたしません(一部例外あり)。
【注意】
○ご使用になる前に取扱説明書をお読みのうえ正しくお使いください。
○商品の納入は、車上渡しとなります。(国内指定場所、※離島除く)
○型式・台数によって別途チャーター便扱い(別途費用)となります。
○海外納入時には、別途海外向け梱包をお奨めします。
○定格電源範囲外でご使用されると故障の原因となります。
○フロントカバーの締め付けトルクは4.9~7.4N・cmで固定してください。
○定期的に保守メンテナンスをしてください。
○定期的な保守メンテナンスを怠ると、商品の性能劣化・トラブルの要因になることがあります。
○ヒートパイプを200℃以上に加熱しますと破裂する恐れがあります。火中に投げ込まないでください。
○廃棄する場合はヒートパイプの一部を切り欠いてください。
商品の選定でお悩みの方や、導入についてのご相談など、
お気軽にお問い合わせください。
お問い合わせ
商品に関するご質問や、お見積のご依頼など
お気軽にお問い合わせください。


